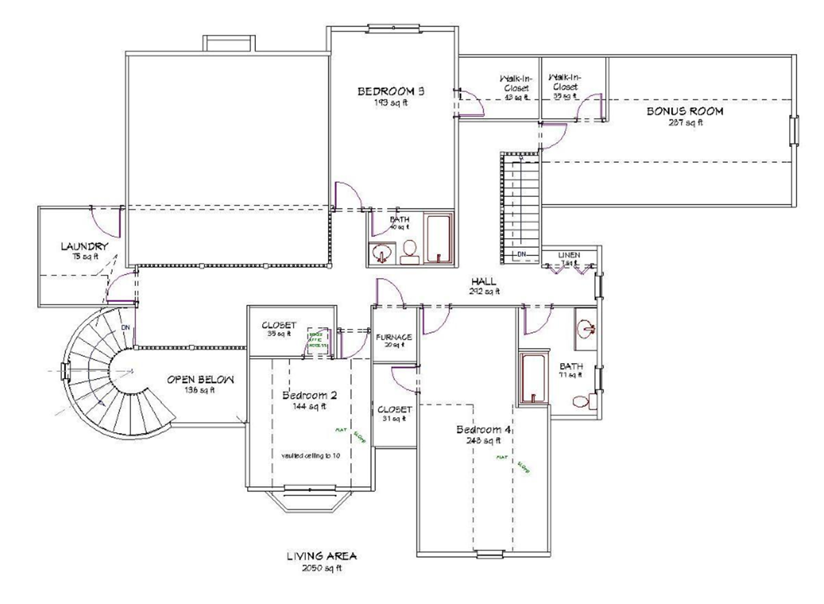
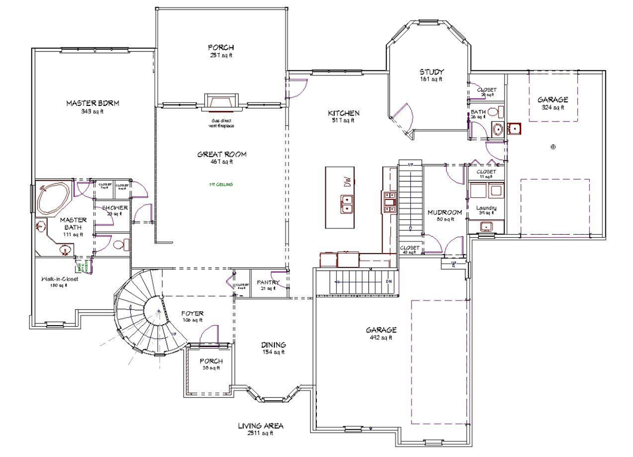
Contact Us Print This Page View Plan Brochure More Floor Plans The Windsor 5 Bed • 3.5 Bath • 3 Garage • 4,225 ft2 Plan Type: 1.5 Story Plan Style: None Walk-In Closets First Floor Study Contact Us Print This Page View Plan Brochure More Floor Plans