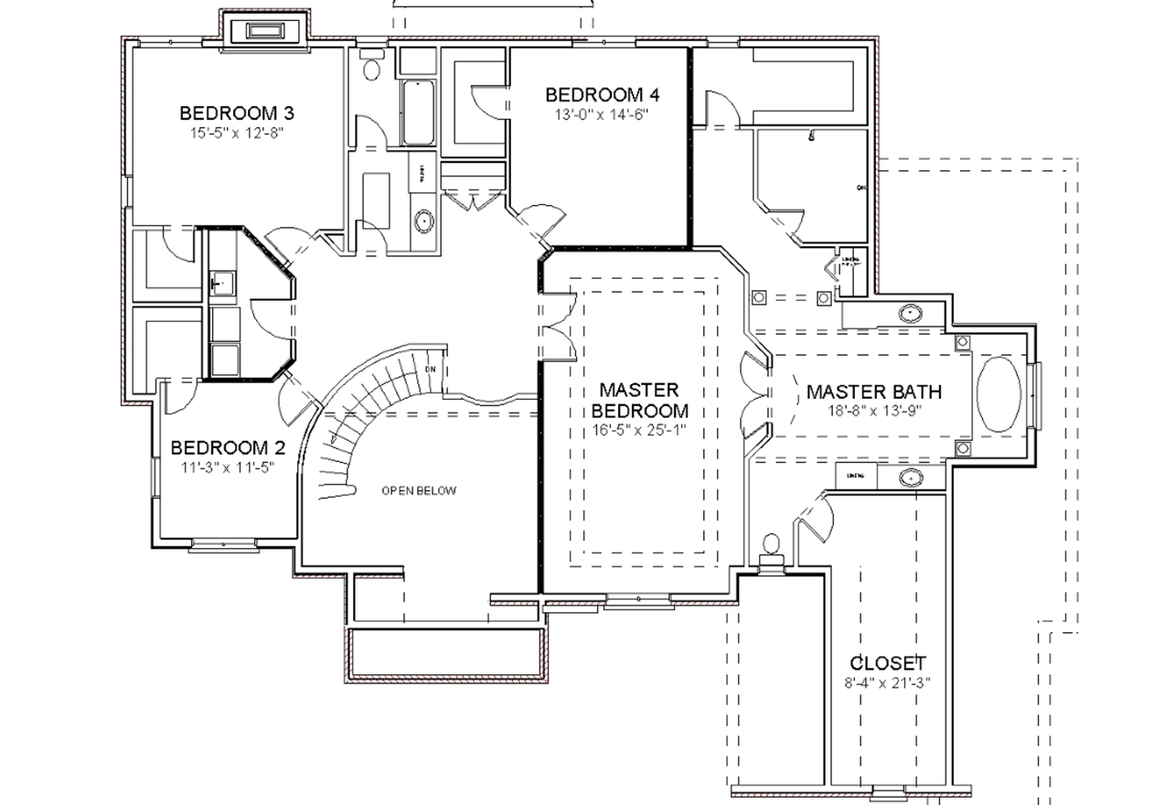
The Thomas
4 Bed • 4 Bath • 3 Garage • 4,175 ft2
Plan Type: 2 Story
Plan Style: None
Oversized Master Suite
Custom Walk-In Shower with Heated Seats
His and Hers Master Closets
Numerous and Oversized Closets
2nd Floor Laundry Room
Beautiful Curved Stairway
Decorative Dining Room Ceiling
Large 3 Car Side Load Garage


